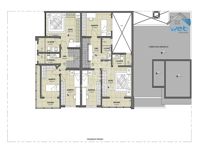
Sobrado tríplex alto padrão à venda no conjunto Mercúrio, bairro Cajuru. São 03 quartos (sendo uma suíte com sacada) amplo terraço com churrasqueira e infraestrutura pronta para Jacuzzi.

O empreendimento é constituído por 03 unidades, sendo 02 tríplex e uma casa térrea, todas com entradas individuais. As unidades foram projetadas com um design moderno, planta pensando no melhor aproveitamento do espaço, além do detalhe da infraestrutura pronta para instalação de ar condicionado (na sala de estar e suíte) e estrutura projetada para receber a jacuzzi com segurança.

O empreendimento está localizado próximo a Escolas, farmácia, linha de ônibus, distribuidora de Bebidas e gás.

Proximidades:
-170m da Águia Gás Distribuidora de Bebidas e Conveniências
- 200m Panificadora Lazarin;
- 950m do Supermercado Mini Preço - localizado ao lado do Terminal do Centenário - na Rua Filipinas, onde você encontra uma grande variedade de comércios e agências bancárias;
- 3 minutos de carro do Supermercado Jacomar da BR-277;
- 5 minutos do Super Condor Cajuru;
- 9 minutos do Shopping Jardim das Américas;
- 10 minutos do Jardim Botânico.

O tríplex tem 144,00m² de área total construída, oferecendo:

Pavimento térreo:

- 03 vagas de garagem, sendo 01 coberta;
- Sala para dois ambientes;
- Cozinha integrada com a sala de jantar;
- Lavabo;
- Área de serviço;
- Quintal.

Segundo pavimento:

- 03 Quartos sendo uma suíte com sacada;
- Banheiro social.

Terceiro pavimento:

- Amplo terraço descoberto;
- Área gourmet coberta;
- Lavabo.

No acabamento temos:

- Muro e guarda-corpo em vidro;
- Piso porcelanato nas áreas úmidas;
- Teto 3D em gesso na sala;
- Escada em porcelanato;
- Banheiros com pia em granito;
- Aquecimento a gás na cozinha e banheiros;
- Infra para ar condicionado na sala e na suíte;
- Infra para jacuzzi no terraço;
- Pintura externa projetada.

Obs:.Valores e disponibilidade sujeitos a alterações sem aviso prévio!

Para mais detalhes, informações atualizadas, simulações de financiamento ou agendamento de visitas, entre em contato com um dos nossos corretores em nossos telefones de plantão.

Conte com o apoio e toda dedicação da Fymoob, vamos atendê-lo da melhor maneira possível.


Curitiba - Cajuru

3 dormitórios (1 suíte)

3 vagas

4 banheiros

144,00 m² de área privativa

144,00 m² de área total

R$ 750.000,00

  exclusivo
Mais Informações via WhatsApp

Os preços, disponibilidades e condições de pagamento poderão ser alterados sem prévia comunicação.

 

Imediações

Cajuru - Curitiba toque para ver no mapa